Demjénben ÚJ Nyaraló és/vagy Otthon

Alapadatok

Alapterület

115 m2

Telek terület

525 m2

Építés éve

2026

Fűtés

Hőszivattyú padlófűtéssel

Energetikai tanúsítvány

A+

Szobák száma

4 szoba

Eladó családi ház 115 MFt 0

Leírás és extrák

Demjén kedvelt részén, csendes nyugodt helyen, kellemes környezetben, új fejlesztésű területen, folyamatosan épülő igényes családi házas területen választhatod a FÖLDSZINTES nappali 3 hálós 2 fürdőszobás otthont, mely nyaraló vagy vendégház is lehet.

Mostanában egyre több család vásárol közösen családi nyaralót és egész évben élvezik a beosztás szerinti feltöltődést. (Mivel a felnőtt gyerekek családjai egyenként nem engedhetik meg maguknak, hogy ilyen színvonalú ingatlant válasszanak, lehetőségűk szerint családonként a 30-40 millió forint részükkel már összeadódik a vételár és együtt minőségi nyaralót választhatnak.)

Minden korosztály számára ideális választás, szükség esetén akadálymentesíthető.
Teljesen igényeid szerint, személyre szabva választhatod ki új Otthonodat.

Környék:
Demjén hangulatos kistelepülés Heves megyében, mindössze 6 km-re Egertől, Magyarország egyik legkedveltebb történelmi és turisztikai városától. A 700 fős falu barátságos légkör áraszt, ahol a nyugalom és a természet összhangja találkozik az egész évben aktív fürdőkultúrával.
Gyógyfürdők közelében, a CASCADA Barlang Élmény és Gyógyfürdő. Korona Borház, Saliris, Retro fürdő. A környék kiváló kiránduló hely, kerékpárral és túrázva is tartalmas programokkal.

Jellemzői: panoráma, igényesség, korszerű technológia, alacsony rezsi.

Fűtés: a fűtést és a melegvíz ellátást hőszivattyús rendszer, padlófűtéssel.

Átadás:. 2026. nyár.

Az ingatlan ára készültségi foktól és extra igényektől függően változhat. Szerkezetkész, kulcsrakész állapotban megvásárolható. A környéken jól ismert megbízható kivitelezővel.


Rugalmas fizetési ütemezés megállapodás szerint lehetséges, hitel felvehető.


Műszaki tartalom:


Alap: 50 cm széles sávalap koszorús vasalással, zsalukő lábazat, 15 cm vastag vasalt aljzatbeton, melynek felső síkján talajnedvesség elleni szigetelés készül
.
Falak: a földszint körítő falazatai 37,6 cm vastag YTONG Classic NF+GT falazó elemből épülnek, külső 10 cm-es szigeteléssel, a válaszfalak 10 cm vastag YTONG Pve NF válaszfalelemekből falazandók, zsalukő lábazati falazat készül 30 cm vastagságban, a válaszfalak alatt erősítő bordával
Födém és koszorúk: a teherhordó falak vb. koszorúval zárva, ill. összefogva, fa födém szerkezettel, a tető héjazata LEIER GRANITE betoncserép
.
Nyílászárók: MARSHALL nyílászárók vakolható tokkal, szúnyoghálóval és aluminium redőnnyel kerülnek beépítésre

Padló szigetelése: 12 cm vastag lépésálló födémben
Födém: 25 cm a födémhez előírt szigetelés vastagság.

Homlokzat: 10 cm-es külső szigeteléssel.




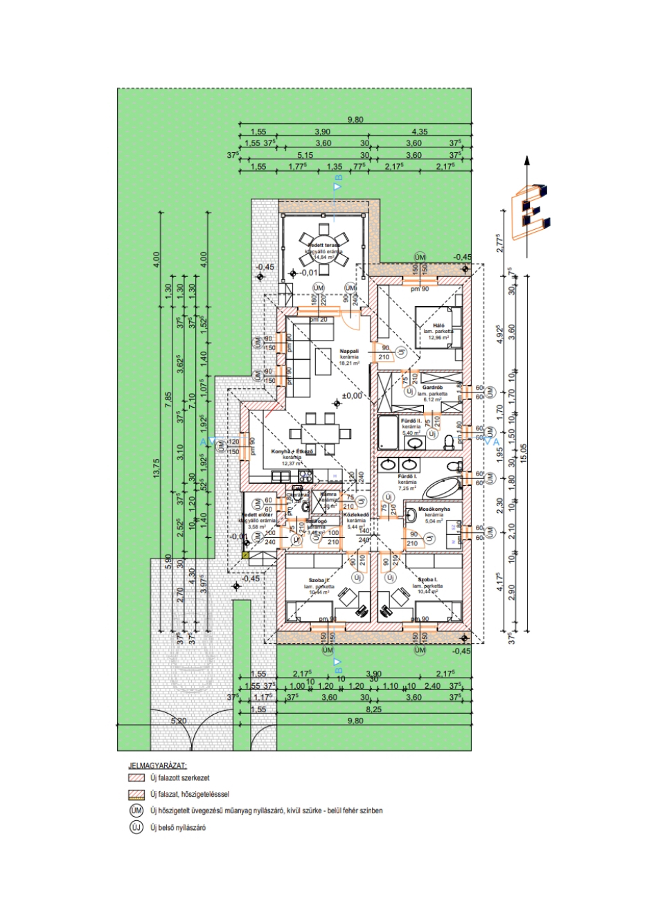
Helyiségek:

1. Szélfogó 3,46 m²

2. Wc 1,20 m²

3. Közlekedő 5,44 m²

4. Kamra 1,20 m²

5. Szoba I. 10,44 m²

6. Szoba II. 10,44 m²

7. Konyha + Étkező 12,37 m²

8. Nappali 18,21 m²

9. Mosókonyha 5,04 m²

10. Fürdő I. 7,25 m²

11. Fürdő II. 5,40 m²

12. Gardrób 6,12 m²

13. Háló 12,96 m²
Összesen: 99,53 m²

14. Fedett teraszt 14,84 m²

15. Fedett előtér 3,58 m²

Összesen: 115 m²


Teljes körű jogi háttérrel, hitelügyintézéssel állunk ügyfeleink rendelkezésére.


Perfect Homes - OTTHONT ADUNK

Ha különleges otthont keresel, a Perfect Homes kínálatában megtalálod.
Kizárólagos megbízásainknak köszönhetően ez az ingatlan csak nálunk található meg.

Hívj minket, ha szeretnéd értékesítés előtt felkészíteni, különlegessé varázsolni a mostani otthonod!


SZAKÉRTŐ CSAPATUNK SZOLGÁLTATÁSAI:

- értékesítés

- Home Staging (lakásfelkészítés)
- értékbecslés
- energetikai tanúsítás készítése
- ügyvédi háttér
- lakberendezési tanácsadás
- Fundamenta ügyintézés

- hitelügyintézés

- tervezés, generál kivitelezés

- fotó és videó készítés
- költöztetés
- kertépítés, kertgondozás

Ha a múltbéli kínálatunkat szeretnéd megtekinteni, a Facebook oldalunkon eléred.


Demjénben ÚJ Nyaraló és/vagy Otthon

Demjénben ÚJ Nyaraló és/vagy Otthon

Demjénben ÚJ Nyaraló és/vagy Otthon

Demjénben ÚJ Nyaraló és/vagy Otthon

Demjénben ÚJ Nyaraló és/vagy Otthon

Demjénben ÚJ Nyaraló és/vagy Otthon

Demjénben ÚJ Nyaraló és/vagy Otthon

Demjénben ÚJ Nyaraló és/vagy Otthon

Demjénben ÚJ Nyaraló és/vagy Otthon

Demjénben ÚJ Nyaraló és/vagy Otthon

Demjénben ÚJ Nyaraló és/vagy Otthon

Demjénben ÚJ Nyaraló és/vagy Otthon

Demjénben ÚJ Nyaraló és/vagy Otthon

Demjénben ÚJ Nyaraló és/vagy Otthon

Demjénben ÚJ Nyaraló és/vagy Otthon

Demjénben ÚJ Nyaraló és/vagy Otthon

Demjénben ÚJ Nyaraló és/vagy Otthon

Demjénben ÚJ Nyaraló és/vagy Otthon

Demjénben ÚJ Nyaraló és/vagy Otthon

Demjénben ÚJ Nyaraló és/vagy Otthon

KAPCSOLATI ŰRLAP

Kérdése van? Írja meg nekünk!